

Hill Street Apartments

Hill Street Apartments is a 52 unit modular affordable housing project in Bend, Oregon, scheduled to begin construction in 2026. There are four 7370 SF modular floors over a site built podium. The modules are from the ImHomeToo Apartment . 1 series, and will include 40) Studios, 8) 1 bedroom apartments, and 4) 2 bedroom apartments. The modules are designed to be plug and play to minimize on-site work, and everything above the podium (above the ground floor) will be modular. After modular installation, and after MEP connections, corridors will be finished, and siding will be installed.
Apartment Plans

Apartments, Stairs, Elevator. Hill Street Apartments uses five ImHomeToo module configurations.
Building Plan

Hill Street Apartments has 7370 SF floor plates. ImHomeToo Apartment . 1 two-width modules are designed to configure into unlimited floor plan arrangements with Studios, 1 and 2 bedroom apartments.
Section

The top 4 floors above a post-tension concrete slab are completely modular, with corridors and siding being finished on site, along with roof joints and selected flashing. The ground floor has building support, a coffee shop, and tuck-under parking.
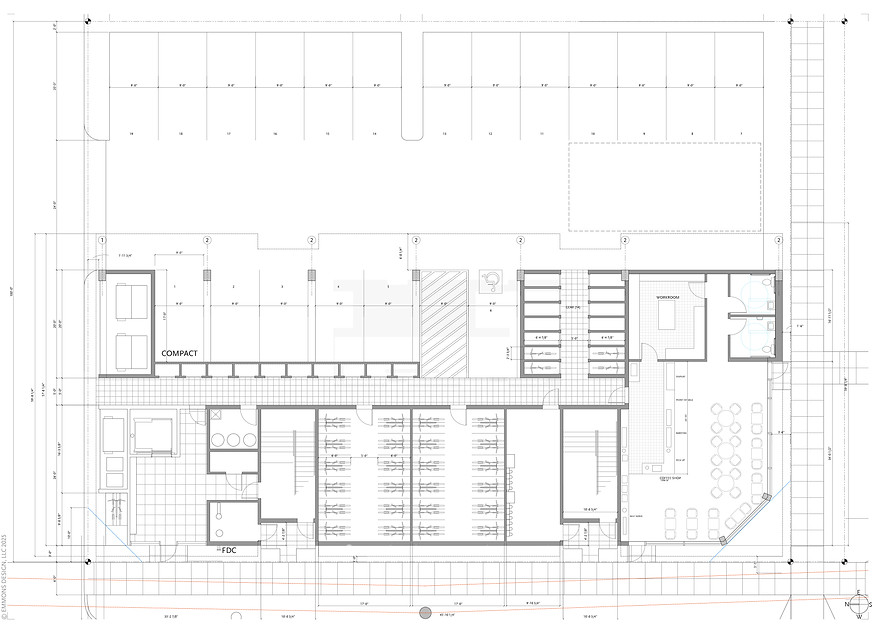
Site Plan

On the east side (top of drawing) is tuck under parking. The Entry for apartments is on the lower left, and bike parking and building services are between the Entry and a coffee shop.
Elevation

Interiors



