HOME
CONTACT
STUART EMMONS
BUILDING PROJECTS
PLANNING PROJECTS
HOMELESSNESS
HOUSING
NORTH COAST
VISIONS AND PLANS
SCHOOLS
EMMONS DESIGN
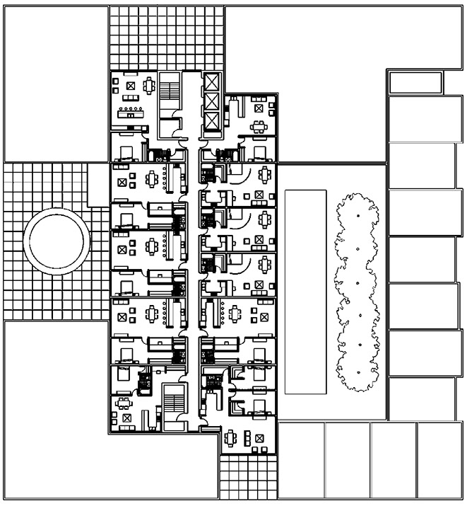
Crane Tower Plans
Floors 8 - 22
Floors 5 - 7
Ground Floor